006.jpg
43-44.jpg
land elevation.jpg
37-38.jpg
model_02.jpg
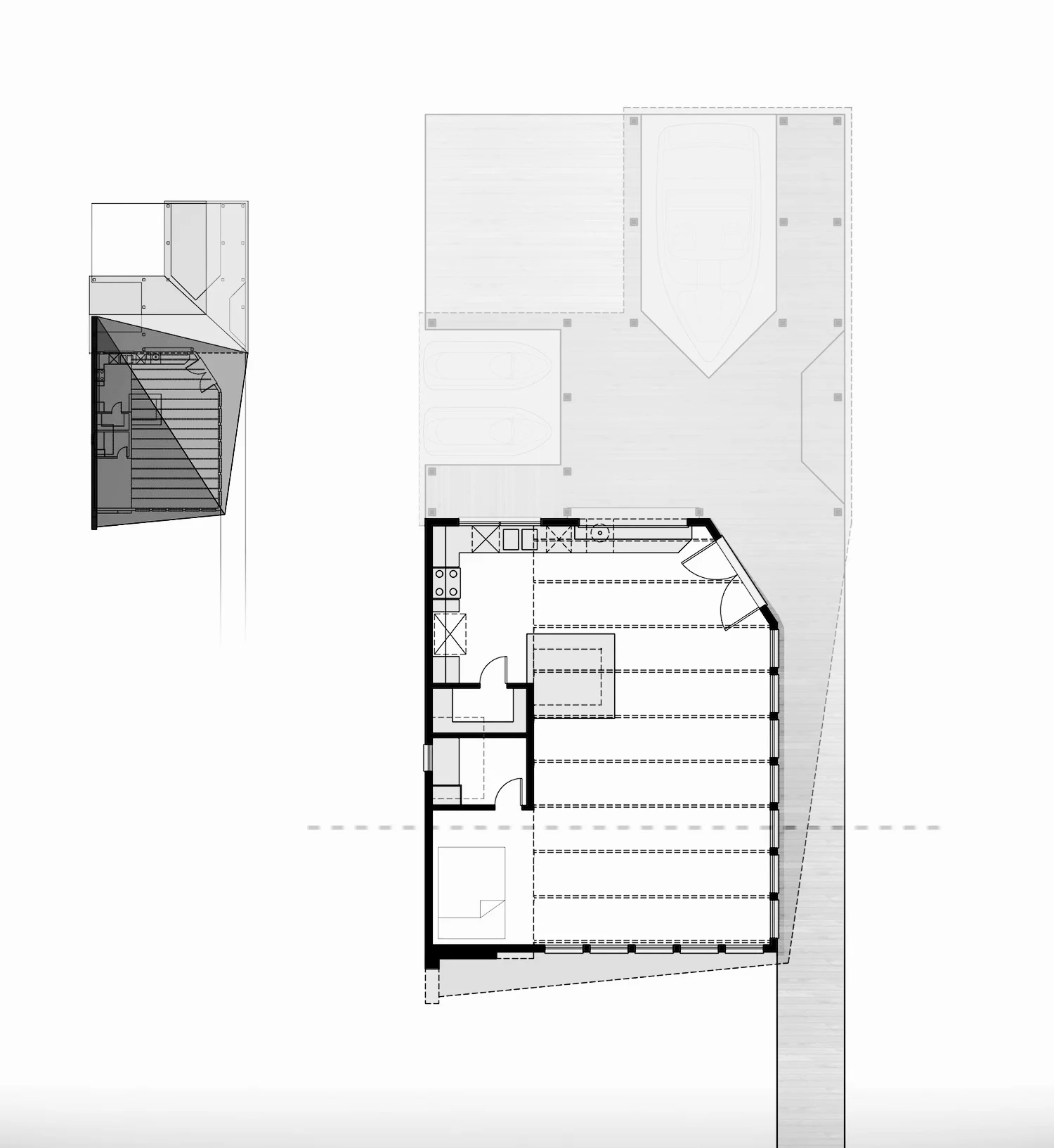
floor plan.jpg
Binder2_Page_5.jpg
Binder2_Page_3.jpg
section.jpg
model_03.jpg
20130124_122509.jpg
5040E9BC-9F21-42BF-88D0-AD12C9FB782B.JPG
_DSC0490.jpg
_DSC0582.jpg
IMG_0033.JPG
IMG_1651.JPG
prev / next